Za ugodno, predvsem pa kvalitetno arhitekturno projektiranje na Gorenjskem se obrnite na najboljši arhitekturni biro v regiji - Studio Tržič d.o.o.

Na naše podjetje Studio Tržič d.o.o. se obrnite, če potrebujete arhitekturno projektiranje na Gorenjskem oziroma, če želite sodelovati s strokovnjaki na področju gradbenega inženiringa, ki so:
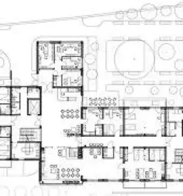
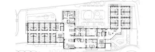
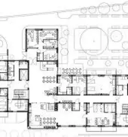
Arhitekturno projektiranje je pomemben del vsakega gradbenega projekta, zato tudi pri vašem ne sme manjkati dober arhitekt, ki zna upoštevati vaše želje, vas opozoriti, kadar jih je nemogoče vključiti in predlagati alternative, da ste s končnim izdelkom resnično zadovoljni.
Za arhitekturno projektiranje na Gorenjskem kot najboljši veljamo v našem arhitekturnem biroju, saj imamo za sabo že veliko uspešno zaključenih projektov, ki so naše najboljše reference, da imamo bogato strokovno znanje in veliko izkušenj, ki jih vpeljujemo v delo.

Naše storitve:
Ker nudimo tudi odlično razmerje med kakovostjo in ceno, pa se stranke zadovoljne vračajo k nam. Tudi vi nam lahko brez skrbi zaupate arhitekturno projektiranje Gorenjska.
Upoštevaje vaše zmožnosti, želje in potrebe bomo poskrbeli, da bodo rešitve, ki vam jih naše arhitekturno projektiranje na Gorenjskem nudi, presegle vaša pričakovanja.
Naše reference si oglejte na naši spletni strani, za vse dodatne informacije oziroma vprašanja, ki se nanašajo na arhitekturno projektiranje na Gorenjskem, pa nas pokličite ali nam pišite.
Povpraševanja
Ocene 1
Dobro načrtovana hiša
Pri Studiu Tržič smo naročili idejno zasnovo za hišo. Najprej smo se pogovorili o tem, kako želimo uporabljati prostor in kakšen stil nam je všeč. Predlog je bil prav po naših željah.
Ali nam lahko zaupate, kaj vam ne ustreza?