Arhitekturno načrtovanje Podravska, Prekmurje |
Podjetje ATBiro, Boštjan ZOREC s.p. je na slovenskem trgu znano po svojih kvalitetnih in ugodnih storitvah s področja arhitekturnega načrtovanja.
Večino projektov za arhitekturno načrtovanje izvedemo na območju Podravske in Prekmurja, sodelujemo pa tudi s strankami iz ostale Slovenije.
Na voljo smo vam za:
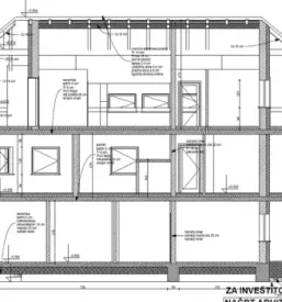
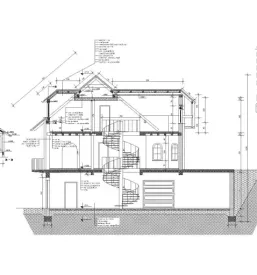
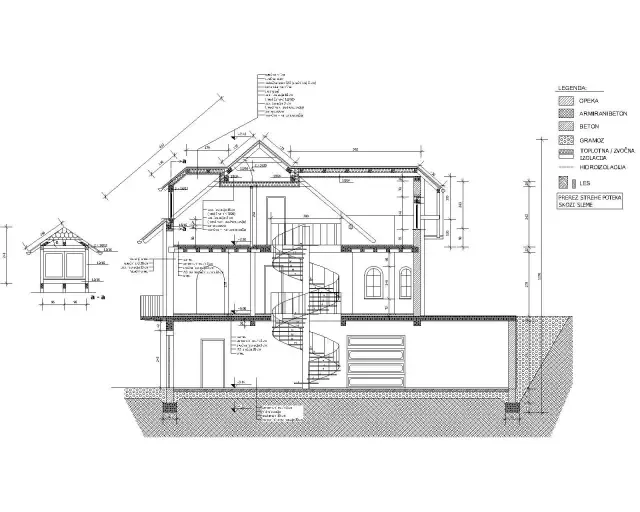
- projektiranje gradbenih konstrukcij,
- projektiranje prometnih površin, kanalizacije, vodovoda, strojnih in električnih inštalacij,
- projektantski in gradbeni nadzor,
- svetovalni in izvedbeni inženiring,
- 3D izris objektov in notranjega dizajna.
Če iščete strokovnjaka za arhitekturno načrtovanje, Podravska ali Prekmurje pa sta regiji, kjer ga potrebujete, ste na pravem naslovu.

Na področju arhitekturnega načrtovanja v podravski regiji in Prekmurju smo znani po prilagodljivosti, strokovnem svetovanju ter ureditvi celotne potrebne dokumentacije za našo stranko.
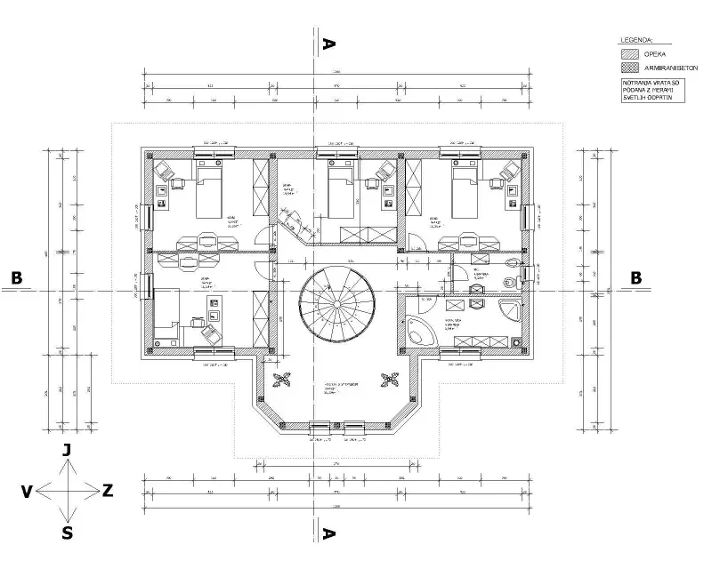
V naši ponudbi so tudi tipski projekti različnih eno- in več stanovanjskih objektov, poslovnih objektov, pripravimo pa tudi projekte za nizkoenergijske in pasivne hiše. Niso nam tuji tudi ostali projekti po dogovoru z naročnikom.
Za vsa dodatna vprašanja, vezana na arhitekturno načrtovanje Podravska, Prekmurje, smo vam na voljo na objavljenih kontaktih ali naši spletni strani.
Povpraševanja
Ocene 0