Arhitekturno načrtovanje Osrednja Slovenija |
Na RcR projekt d.o.o. se obrnite, če želite arhitekturno načrtovanje projektov po Osrednji Sloveniji ali kjer drugje prepustiti kadru z izkušnjami in vidnimi referencami.
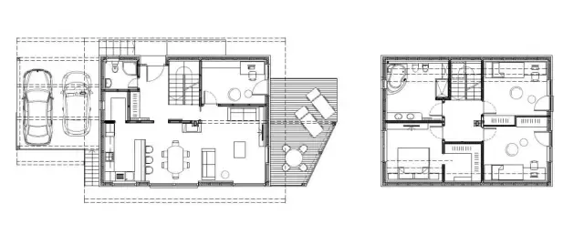
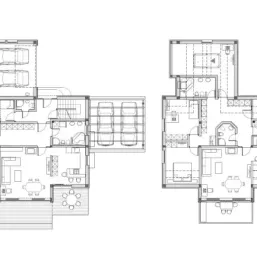
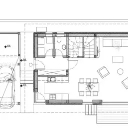
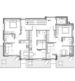
Že vrsto let ponujamo arhitekturno načrtovanje na najvišjem možnem nivoju ter smo v Osrednji Sloveniji in na Gorenjskem tudi med cenovno najbolj konkurenčnimi ponudniki arhitekturnih rešitev.

Naše vodilo so zadovoljni investitorji in uporabniki arhitekture oziroma prostora. Zato je vsako arhitekturno načrtovanje individualno prilagojeno in izvedeno po meri naročnika.
Poskrbimo, da arhitekturno načrtovanje ponudi estetske, funkcionalne rešitve, ki so tudi časovno in finančno optimalne oz. skladne s potrebami ter zahtevami.
Arhitekturno načrtovanje nam lahko zaupate za vse vrste objektov in stranke po celi Osrednji Sloveniji ter od drugje vam bodo potrdile, da s storitvijo ne le dosežemo, pač pa presežemo pričakovanja.

Najsi potrebujete arhitekturno načrtovanje za stanovanjski, turistični, poslovni, industrijski objekt ali iščete urbanistične rešitve, tu smo za vas, da vam pomagamo.
Pokličite za sodelovanje, morebitna dodatna vprašanja, ponudbo. Prepričajte se sami, zakaj smo za arhitekturno načrtovanje v Osrednji Sloveniji med najboljšimi.
Povpraševanja
Ocene 0
Ali nam lahko zaupate, kaj vam ne ustreza?